STORTKOKER 5586

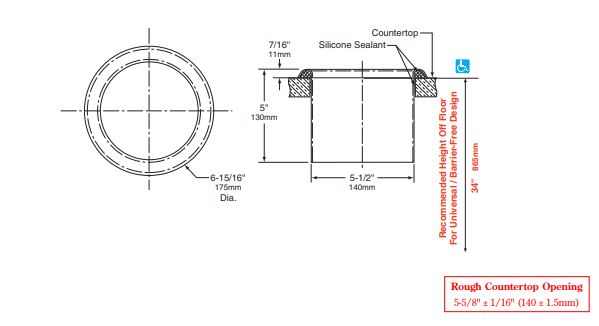
B529 RVS 304 stortkoker voor opbouw inw. 140mm. Hoogte 130mm.
RVS stortkoker diam. inw. 140mm, uitw. 175mm. Hoogte 130mm. Oplegrand ca. 10mm hoog.
Productcode
B-529
Merk
Prijs op aanvraag

Heeft u vragen? Bel 078 - 69 18 783

Maatwerk?

Wij hebben al jarenlang ervaring met RVS maatwerk. Al onze RVS maatwerk producten kunnen binnen 1-3 weken geleverd worden.

De voordelen van een internorm account