AFVALBAK 3154

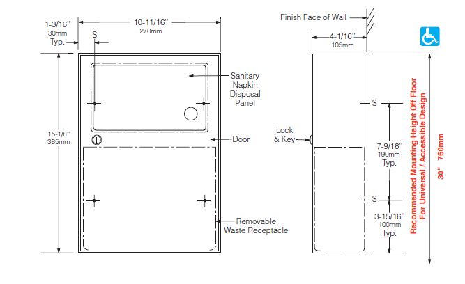
B254 RVS afvalbakje opbouw 4,6L. Afm. 270x385x105mm.
RVS vuilnisbakje voor damesverband met zelfsluitende klep. Hoogte 35mm, breedte 270mm en diepte 105mm. Incl. slot. 4,5 ltr
Productcode
B-254
Merk
Prijs op aanvraag

Heeft u vragen? Bel 078 - 69 18 783

Maatwerk?

Wij hebben al jarenlang ervaring met RVS maatwerk. Al onze RVS maatwerk producten kunnen binnen 1-3 weken geleverd worden.

De voordelen van een internorm account