AFVALKLEP 4689

BJ200 RVS vlakbouw zelfsluitende klep tbv afval uitw. 220x220mm
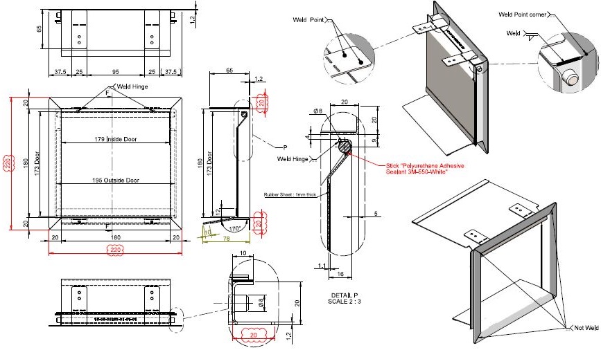
RVS doorvoer tbv afval/handdoekjes. Montage in deur of wand. Uitw. afm. 220x220mm, klep inw. 179x173mm. ZONDER klem/veer. Inbouwmaat 195x180mm
Productcode
3.03.0500
Merk
Levertijd
1-3 dagen
Prijs op aanvraag

Heeft u vragen? Bel 078 - 69 18 783

Maatwerk?

Wij hebben al jarenlang ervaring met RVS maatwerk. Al onze RVS maatwerk producten kunnen binnen 1-3 weken geleverd worden.

De voordelen van een internorm account