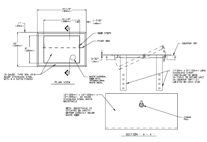
AFVALKLEP 4171

BJ360255 RVS zelfsluitende afval klep 360x255mm. Montage in blad.
Werkt alleen optimaal bij montage in blad. Uitw. afm. 360x255mm, klep inw. 265x200mm. RVS 304 zelfsluitende klep tbv afval. Montage in werkblad / spoelblad. Voor opbouw
Productcode
3.03.0511
Merk
Levertijd
1-3 dagen
Prijs op aanvraag

Heeft u vragen? Bel 078 - 69 18 783

Maatwerk?

Wij hebben al jarenlang ervaring met RVS maatwerk. Al onze RVS maatwerk producten kunnen binnen 1-3 weken geleverd worden.

De voordelen van een internorm account